Skip to content
Your all in one service and gateway to Bangkok Thailand
Menu
+
×
expanded
collapsed
Stay @ AVANA BANGNA
โรงงานโกดัง เช่า/ขาย
Avana mini factory phase 2
Avana mini factory phase 3
Bangna Condo for Rent
CSR
Facebook
LinkedIn
Twitter
Instagram
Previous Image
Next Image
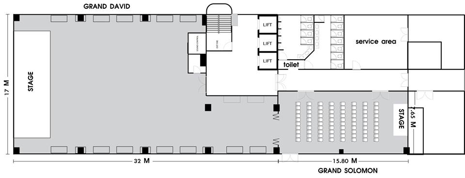
layout meeting room 23
Post navigation
Published in
layout meeting room 23
Leave a comment
Cancel reply
Δ
Privacy & Cookies: This site uses cookies. By continuing to use this website, you agree to their use.
To find out more, including how to control cookies, see here:
Cookie Policy
Comment
Subscribe
Subscribed
Your all in one service and gateway to Bangkok Thailand
Sign me up
Already have a WordPress.com account?
Log in now.
Your all in one service and gateway to Bangkok Thailand
Subscribe
Subscribed
Sign up
Log in
Copy shortlink
Report this content
View post in Reader
Manage subscriptions
Collapse this bar
Design a site like this with WordPress.com
Get started